Vartany Medical Building
18,000 square feet
Burbank, CA
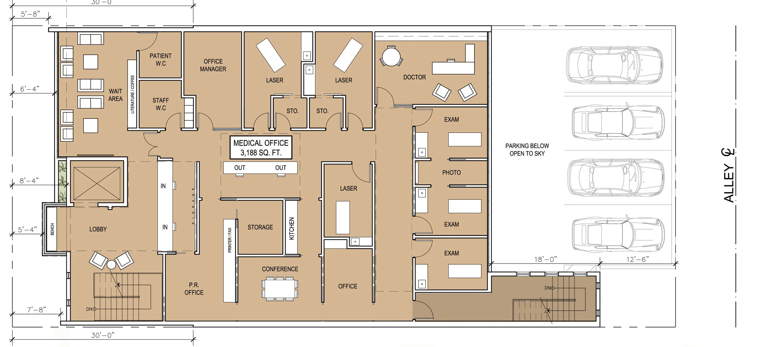
This new construction ground-up 3-story medical office building held the challenge of fitting two stories with a medical office and outpatient surgical center on a small lot complete with a parking garage. A complicated parking system was employed to meter the vehicles in and out of the one-ramp underground lot. The contemporary aesthetic of the building fits with the look of the surrounding hospital and medical buildings in Burbank.
